Plutostraat 21

6543 WK Nijmegen

€ 400.000,- k.k. Verkocht o.v.
Bekijk alle 31 foto's
Download bBrochure

Omschrijving

Op gunstige locatie gelegen eengezinswoning met 3 slaapkamers, een tuin op het zuidwesten met een overkapping en een gezellige en lichte woonkamer. Het huis ligt op korte afstand van winkels, supermarkten, scholen, een groen park en de uitvalswegen. Zelfs het centrum en het NS-station liggen binnen 10 fietsminuten afstand.

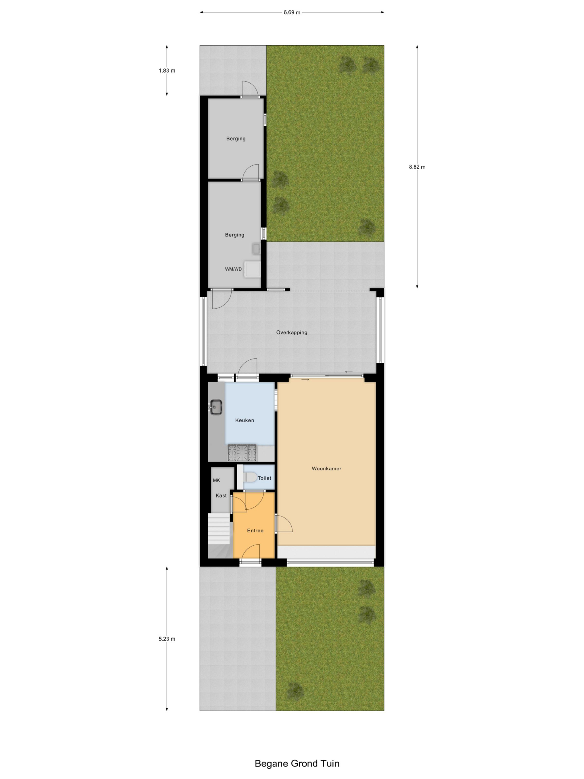
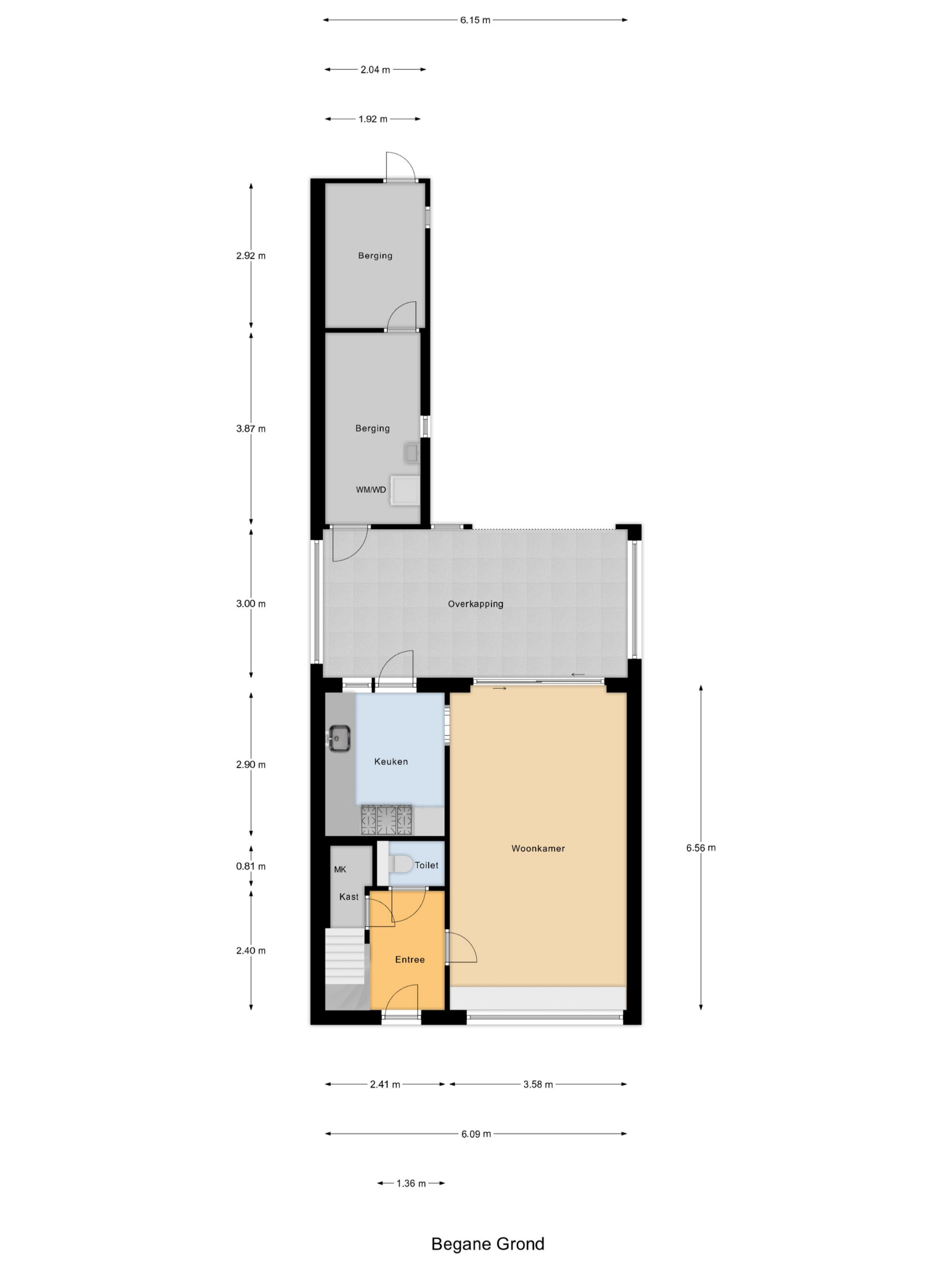
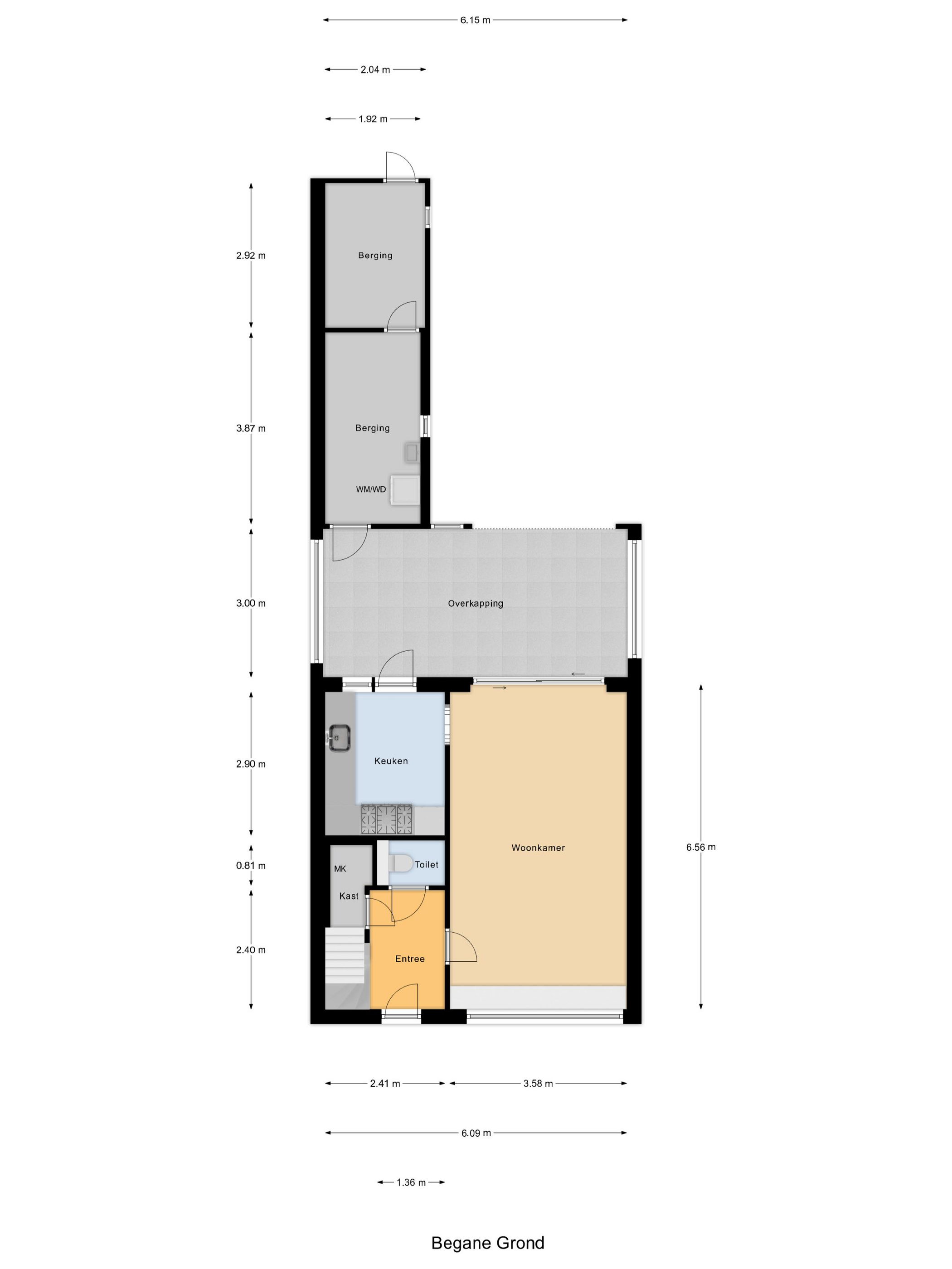
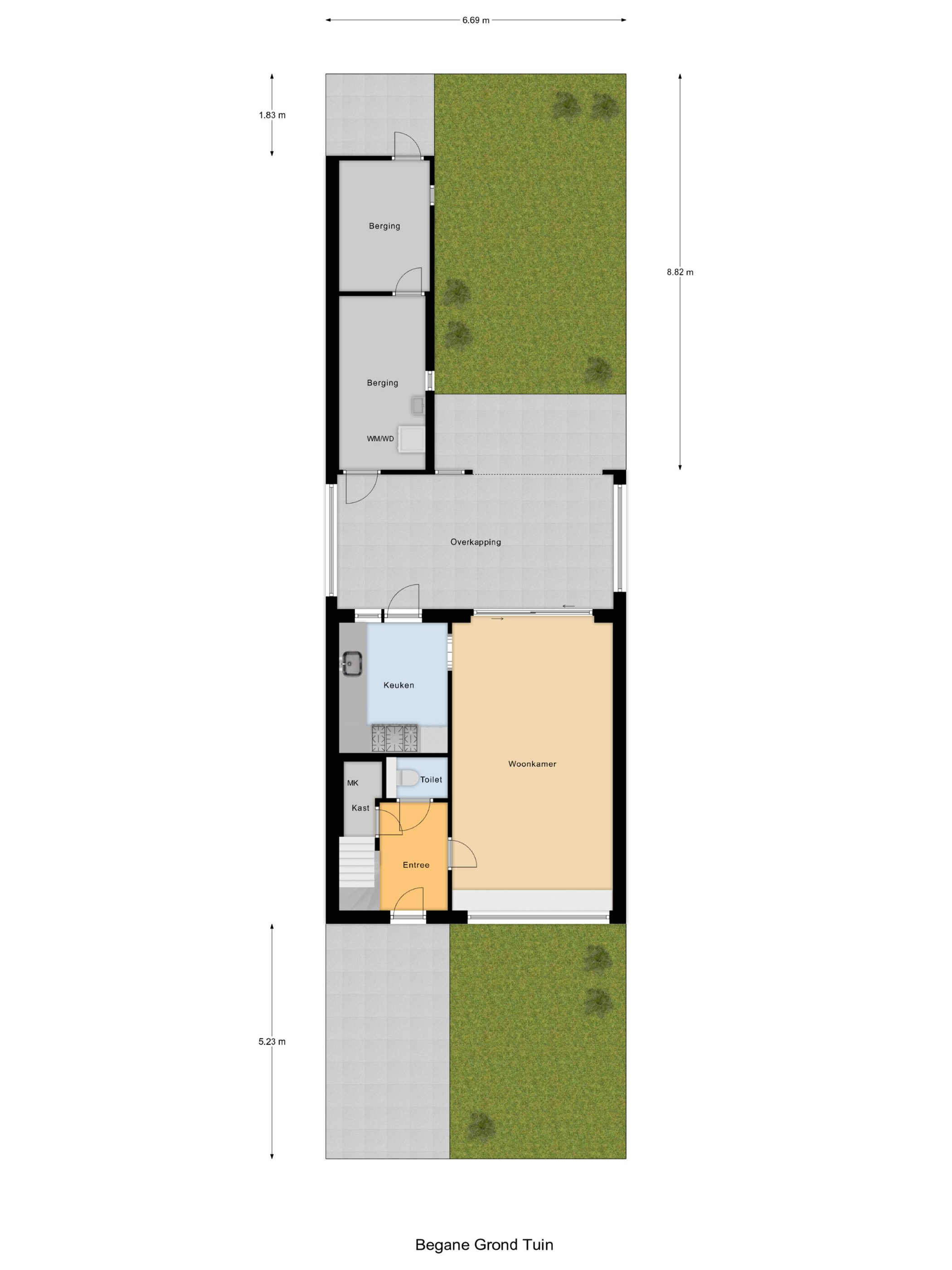
Indeling.
Begane grond: entree, gang met toilet en trapkast en toegang tot de kleine kelder, doorzonwoonkamer met grote raampartijen en schuifpui naar de achtertuin. De open keuken is voorzien van diverse apparatuur zoals een vaatwasser, 5 pits gasfornuis, koelkast, combimagnetron en afzuigkap.
De begane grond is voorzien van een hardhouten parketvloer die na een grondige schuurbeurt weer als nieuw te maken is.

De achtertuin ligt op het zuidwesten, is voorzien van een achterom, een stenen berging die is voorzien van de wasmachine-aansluiting en een fraaie overkapping. In de weelderig begroeide tuin staan onder andere een perzik- en kersenboom.

Eerste verdieping: overloop, in totaal zijn hier drie slaapkamers waarvan er één is voorzien van een airco. De nette badkamer heeft een douche en een wastafelmeubel.

Algemeen: bouwjaar 1959, woonoppervlakte ca. 80 m2, perceel 148 m2.

Bijzonderheden:
- leuke starterswoning, gelegen op een gunstige en gewilde locatie nabij tal van voorzieningen
- de woning is deels voorzien van kunststof kozijnen met rolluiken
- er is een onafhankelijke bouwkundige keuring ter inzage
- aanvaarding: in overleg

Kenmerken

Overdracht

  • Vraagprijs:€ 400.000,- k.k.
  • Status:Verkocht o.v.
  • Aanvaarding:In overleg

Indeling

  • Aantal kamers:4
  • Aantal badkamers:1
  • Aantal slaapkamers:3
  • Voorzieningen:Rolluiken, TV kabel, Airconditioning

Bergruimte

  • Soort:Vrijstaand steen
  • Voorzieningen:Voorzien van elektra, Voorzien van water

Bouw

  • Soort:Eengezinswoning
  • Bouwvorm:Bestaande bouw
  • Bouwjaar:1959

Energie

  • Energieklasse:E
  • Isolatievormen:Dakisolatie, Dubbelglas
  • Soorten verwarming:CV ketel
  • Soorten warm water:CV ketel
  • CV ketel type:Vaillant

Parkeergelegenheid

  • Parkeer faciliteiten:Openbaar parkeren

Oppervlakten en inhoud

  • Wonen:79 m2
  • Overige inpandige ruimte:8 m2
  • Gebouwgebonden buitenruimte:18 m2
  • Perceel:148 m2
  • Inhoud:303 m3

Buitenruimte

  • Liggingen:In woonwijk
  • Tuintypen:Achtertuin, Voortuin
  • Hoofdtuin:Achtertuin
  • Hoofdtuin opp.:67 m2
  • Hoofdtuin positie:Zuidwest
  • Achterom:Ja
Ga naar de bovenkant