Deze zeer ruime en leuke eengezinswoning heeft 4 slaapkamers en biedt zelfs de mogelijkheid tot 5 slaapkamers. De woning is gelegen aan de rand van de wijk waardoor je snel richting de uitvalswegen of de voorzieningen kunt.
Indeling.
Begane grond: entree, hal met trapkast, toilet met fonteintje, mooie lichte doorzonwoonkamer, open keuken met keurige inrichting inclusief diverse inbouwapparatuur. Via de keuken is de onderhoudsvriendelijke achtertuin bereikbaar die is voorzien van een stenen berging en een achterom. De begane grond is voorzien van een laminaatvloer, gestucte wanden en plafond.
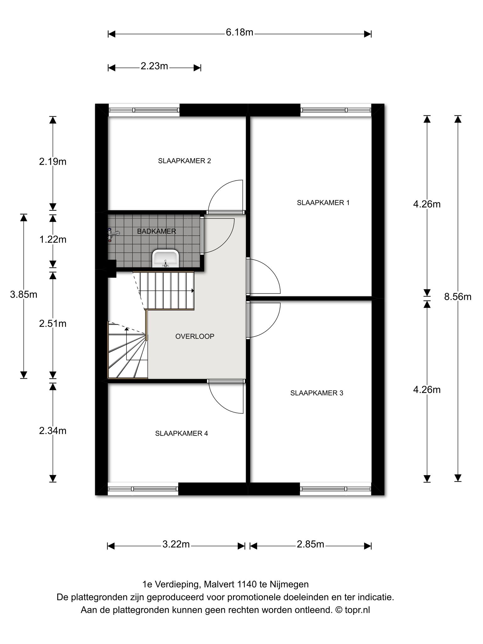
Eerste verdieping: overloop, 4 prima slaapkamers (afmetingen 2x 12m2 en 2x 7m2), nette doucheruimte met wastafel en douche. De gehele verdieping is voorzien van laminaatvloeren, gestucte wanden en gipsplafonds.
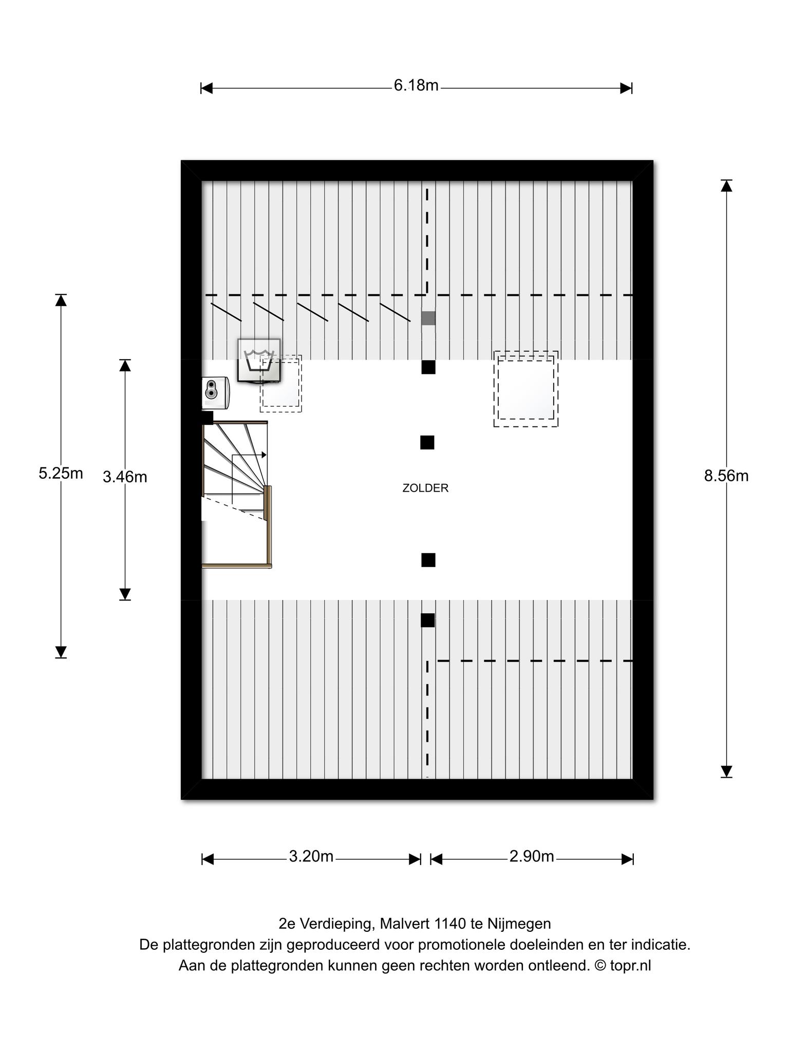
Tweede verdieping: via vaste trap bereikbare zolderverdieping met 2 dakramen en de cv-ketel. Dit is nu nog een open zolder maar deze is eenvoudig te verbouwen tot een voorzolder en zolderkamer, eventueel met een dakkapel. De stahoogte op de zolder is 2,46 meter onder de nok.
Bijzonderheden:
- leuke en ruime eengezinswoning met 4 slaapkamers
- voorzien van dak-, vloer-, glas- en muurisolatie, energielabel B
- verwarming en warm water via cv-ketel Intergas HR uit 2021
- de keuken heeft diverse inbouwapparatuur zoals een 5-pits gasfornuis, een oven, een koelkast en vriezer, een vaatwasser en een afzuigkap.
- oplevering: per direct


