*** vraag je bezichtiging via Funda aan en plan daarna zelf online een afspraak ***
Deze goed onderhouden semi-bungalow met garage en ruime, zonnige tuin op het noordwesten is uitermate geschikt voor ouderen die kleiner willen wonen en een slaap- en badkamer op de begane grond willen. Maar ook starters die eens wat anders zoeken dan een standaard woonhuis kunnen hier goed terecht; het huis heeft per slot van rekening 3 slaapkamers, meer dan voldoende bergruimte en een erg nette afwerking.
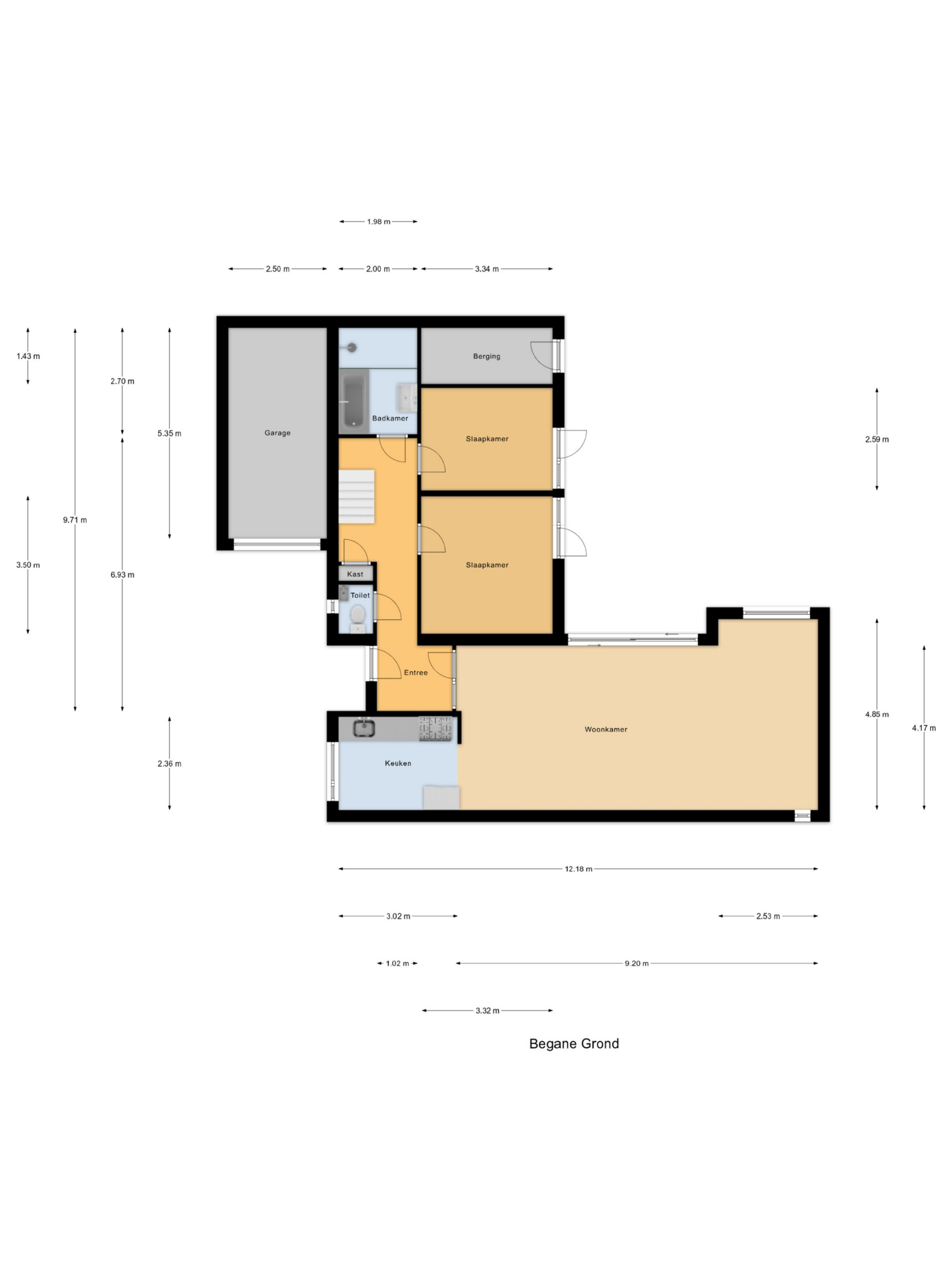
Indeling.
Begane grond: entree/hal, toilet, kast, slaapkamer I en slaapkamer II, moderne badkamer met ligbad, wastafelmeubel en inloopdouche. Beide slaapkamers hebben toegang tot de achtertuin. De woonkamer is voorzien van een grote schuifpui en een hoog doorlopend plafond. Hierdoor is het een erg ruimtelijke kamer geworden. Aan de woonkamer grenst de open keuken die is voorzien van diverse inbouwapparatuur.
De achtertuin is keurig onderhouden en voorzien van diverse mooie vaste planten. Er is een inpandige berging en via een poort is de achterom bereikbaar. Aan de voorzijde van de woning staat de aangebouwde stenen garage. Deze is voorzien van een elektrische kanteldeur, een vide en elektra.
Eerste verdieping: overloop met vide, bergkast met cv-ketel (Atag HR 2021) en wasmachine-aansluiting, slaapkamer III.
Algemeen: bouwjaar 1978, woonoppervlakte ca. 111 m2, perceel 218 m2.
Bijzonderheden:
- leuk vormgegeven en speels ingedeelde semi-bungalow met garage
- het huis is rustig gelegen, op korte afstand van winkels, scholen en openbaar vervoer
- de woning is voorzien van muur-, dak- en grotendeels glasisolatie; het energielabel is C
- het huis is voorzien van 10 zonnepanelen met een jaaropbrengst van circa 2.000 kWh
- aanvaarding: bij voorkeur per eind mei 2026


