Kaaplandstraat 32

6543 PE Nijmegen

€ 475.000,- k.k. Verkocht
Bekijk alle 48 foto's
Download bBrochure

Omschrijving

Ontzettend charmante jaren '30 gezinswoning met mooie diepe en zonnige achtertuin. Het huis beschikt nog over diverse leuke en originele details, zoals de granitovloer in de hal, de en-suite deuren en de paneeldeuren. De ligging is zeer centraal; op slechts een kleine 10 minuten sta je in het centrum en het Centraal Station. Om de hoek heb je diverse winkels en supermarkten. Ook scholen, kinderdagopvang en het Goffertpark zijn dichtbij.

Indeling.
Begane grond: entree, hal met de originele vloer, toegang tot de kelderberging (1.86 meter stahoogte) met vernieuwde meterkast en toilet. Via de gang zijn zowel de keuken als de woonkamer bereikbaar. De open keuken is voorzien van een complete inrichting inclusief diverse inbouwapparatuur, zoals een vaatwasser, koelkast, gasfornuis, afzuigkap en een oven. De lichte woonkamer heeft nog de originele en-suite constructie en heeft aan de voorzijde een gezellige erker. Aan de achterzijde tref je dubbele tuindeuren aan, daarnaast kun je ook via de keukendeur naar de tuin.

De achtertuin is ongeveer 15 meter diep en ligt op het noordwesten. Dat betekent dat je de gehele dag zon hebt. In de tuin, voorzien van een achterom, staat een stenen berging die is voorzien van elektriciteit.

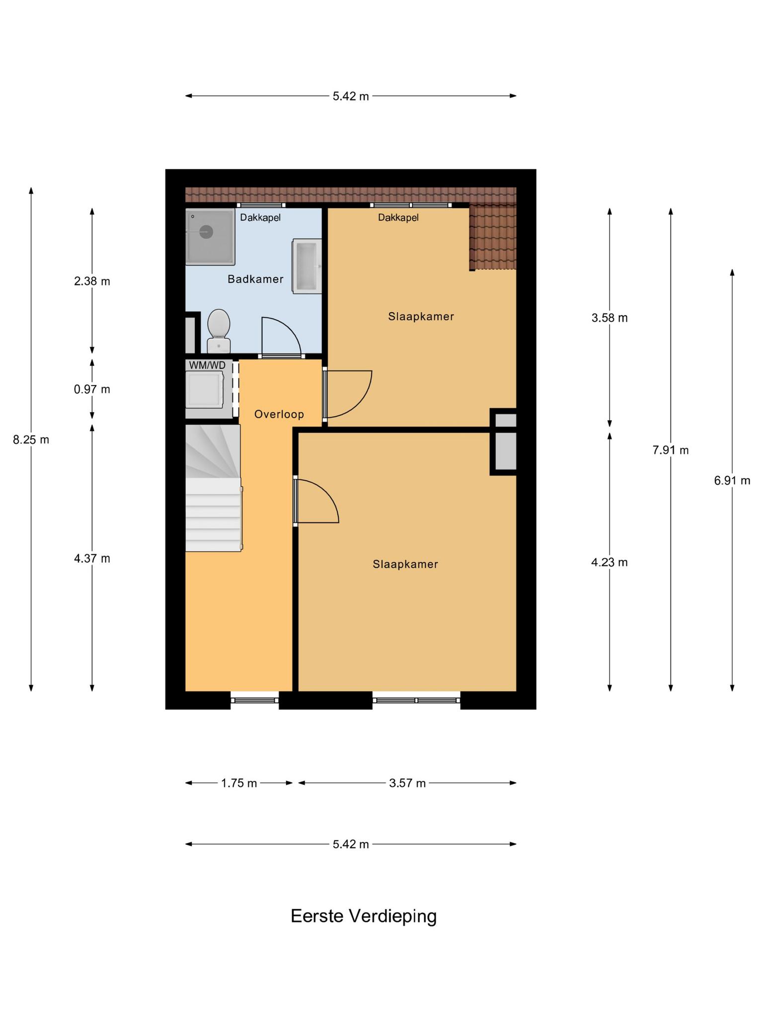
Eerste verdieping: overloop met fraaie parketvloer en wasmachine-/drogeraansluiting. Op de overloop staat nu een grote kledingkast, maar dat zou ook gebruikt kunnen worden als thuiswerkplek. Op deze verdieping zijn twee ruime slaapkamers en een lichte, moderne badkamer. Deze is voorzien van een douchecabine, wastafelmeubel en een toilet.

Tweede verdieping: via een vaste trap bereik je eerst de voorzolder bergruimte waar de cv-ketel hangt. Daarna is er een ruime derde slaapkamer die is voorzien van een groot dakraam.

Algemeen: bouwjaar 1936, gebruiksoppervlakte wonen ca. 103 m2 (exclusief kelder), perceel 187 m2.

Bijzonderheden:
- goed onderhouden leuke en sfeervolle gezinswoning, gelegen aan een rustige woonstraat, op korte afstand van tal van dagelijkse voorzieningen en de uitvalswegen
- de woning is, op de hal na, volledig voorzien van isolatieglas (deels HR++) en dakisolatie
- aanvaarding wenselijk medio maart 2025

Kenmerken

Overdracht

  • Vraagprijs:€ 475.000,- k.k.
  • Status:Verkocht
  • Aanvaarding:In overleg

Indeling

  • Aantal kamers:4
  • Aantal badkamers:1
  • Aantal slaapkamers:3
  • Voorzieningen:Glasvezel kabel

Bergruimte

  • Soort:Vrijstaand steen
  • Voorzieningen:Voorzien van elektra

Bouw

  • Soort:Eengezinswoning
  • Bouwvorm:Bestaande bouw
  • Bouwjaar:1936
  • Dak type:Zadeldak

Energie

  • Energieklasse:D
  • Isolatievormen:Dakisolatie, Dubbelglas, HR glas
  • Soorten verwarming:CV ketel
  • Soorten warm water:CV ketel
  • CV ketel type:HR

Parkeergelegenheid

  • Parkeer faciliteiten:Openbaar parkeren

Oppervlakten en inhoud

  • Wonen:103 m2
  • Overige inpandige ruimte:10 m2
  • Gebouwgebonden buitenruimte:0 m2
  • Perceel:187 m2
  • Inhoud:403 m3

Buitenruimte

  • Liggingen:Aan rustige weg
  • Tuintypen:Achtertuin, Voortuin
  • Hoofdtuin:Achtertuin
  • Hoofdtuin opp.:83 m2
  • Hoofdtuin positie:Noordwest
  • Achterom:Ja
Ga naar de bovenkant