Dit ontzettend nette 3-kamer appartement met balkon, eigen overdekte parkeerplaats en berging ligt op slechts enkele minuten van het Centraal Station en het stadscentrum. De woning is voorzien van een moderne, complete keuken en ruime badkamer inclusief ligbad en inloopdouche. Vanwege de keurige afwerking is deze woning instapklaar!
Indeling.
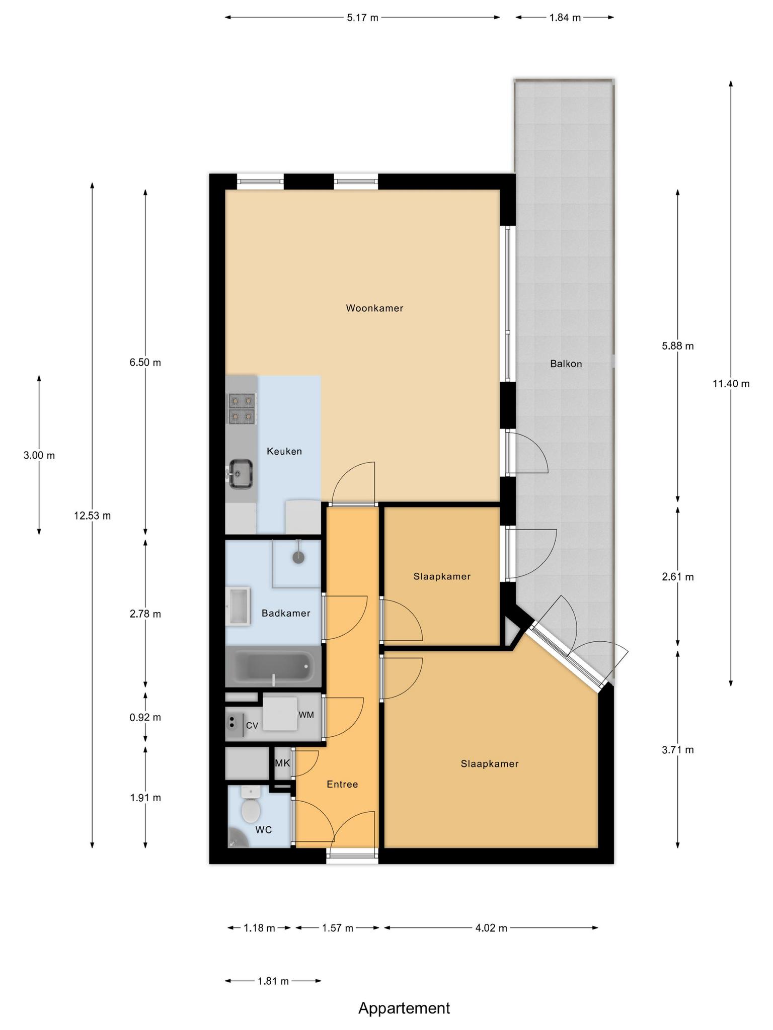
Begane grond: gezamenlijke entree, toegang naar de berging en de parkeerplaats, lift en trappartij.
1e verdieping: entree/gang, toilet met wc en fonteintje, meterkast, berging met cv-ketel (2008), wasmachine-aansluiting en de nodige bergruimte. De moderne badkamer is voorzien van een wastafelmeubel, ligbad en inloopdouche met glazen wand en is in 2023 deels voorzien van nieuw tegelwerk. Aan de gang liggen de twee slaapkamers die beide toegang bieden tot het balkon.
De woonkamer is voorzien van veel raamwerk waardoor het een ontzettend lichte ruimte is en je overal ver van je af kijkt. De open keuken is in 2020 voorzien van een nieuwe inrichting inclusief allerlei inbouwapparatuur. Vanuit de woonkamer is het enorme balkon (20 m2) bereikbaar. Deze ligt op het zuidoosten en biedt vanaf de ochtend tot circa 15.30 uur volop zon.
Algemeen: bouwjaar 2008, woonoppervlakte (excl. balkon) circa 70 m2.
Bijzonderheden:
- de gehele woning is goed geïsoleerd en is voorzien van energielabel A
- actieve en financieel gezonde VVE met een maandelijkse bijdrage van € 122,-
- de keuken is voorzien van de volgende apparatuur: combi-magnetron, vaatwasser, afzuigkap en gasfornuis
- in de woning ligt een laminaatvloer, de wanden zijn gestuct
- de woning ligt op loopafstand van de AH en andere winkels aan de Groenestraat en op korte fietsafstand van het centrum van Nijmegen en het centraal station
- voldoende en gratis parkeergelegenheid voor bezoekers
- aanvaarding: in overleg, bij voorkeur april/mei 2025


